受付時間
9:00~18:00
  定休日 
日曜・祝日
FOR RENT

賃貸物件情報

賃貸ガレージハウス un villa八王子

Point

  • 週末セカンドハウスに・・・専用ガレージで大切な車やバイク、趣味にとことん没頭
  • ペット可、大切な家族と一緒に♪
  • 静脈認証キー&24時間セキュリティ
  • Wi-Fi無料!即インターネット利用可
  • インター近く都心へ、郊外へ、自由自在にアクセス

物件詳細

物件種別

賃貸
建物名・号室 un villa八王子(アン ヴィラハチオウジ)・A号室

所在地

東京都八王子市楢原町363-2

交通

JR中央線「八王子駅」バス15分

京王線「京王八王子駅」バス15分

西東京バス「東楢原」バス停徒歩1分

その他交通

中央道「八王子IC」約3.2㎞

圏央道「あきる野IC」約6.1㎞

占有面積

86.24㎡ 階数/所在階 2階建て/1・2階部分
構造 鉄骨造2階建て 総戸数 6戸
築年月日 平成30年11月     駐車場 1台あり(ガレージ内)
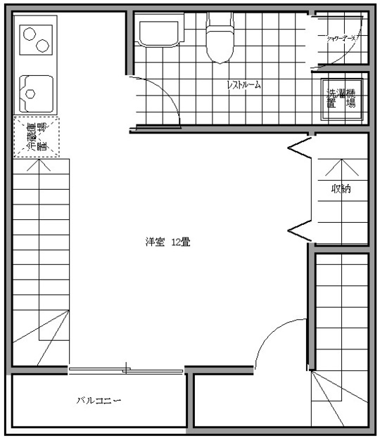
間取り(1F)

・ガレージ 幅3.1m(~奥4.0m)×奥行き6.0m

・電動巻き上げ式シャッター リモコン付き

・シャッター開口 幅3.0m×高さ2.4m

・ガレージ外部専用散水栓

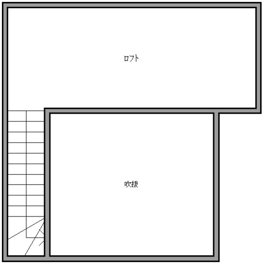
間取り(2F) 1LDK(約12畳+ロフト)
特徴・設備等 都市ガス・電気・エアコン・NTTインターネット+Wi-Fi・CATV・モニター付きインターホン・シューズBOX・クローゼット・システムキッチン2口コンロ・洗面化粧台・ウォシュレット付き温水暖房便座・シャワーブース・電動シャッター車庫・静脈認証・電気錠・敷地内屋外防犯カメラ・24時間緊急通報システム・セキュリティ会社(セコム)加入済み
賃料

125,000円

管理費等 8,000円
敷金

1ヶ月(事業用+1ヶ月)

礼金 1ヶ月(ペット+1ヶ月)
契約期間 2年(事業用3年) 入居可能日 満室
火災保険

約20,000円(貸主指定)

更新料 新賃料の1ヶ月
その他

・スーパーまで870m

・コンビニまで272m

・ドラックストアまで587m

・近隣にはガスト・マクドナルド・ココ壱番屋・各社携帯ショップもあり

・ショッピングモール(コピオ楢原)も車で10分以内、ホームセンター併設

・趣味専用ルーム、書斎、工房・・・事業用も相談可!!(店舗要相談)

・ペット可(飼育頭数、種類要相談)

・楽器不可

・退去時基本清掃費有り

お問合せ・ご相談はこちら

お電話でのお問合せはこちら

042-655-2688

受付時間:9:00~18:00
定休日:日曜・祝日

パソコン|モバイル
ページトップに戻る